בית

>

קבלני שיפוצים

>

מאמרים

>

שיפוץ דירה: תהליך השיפוץ דרך עיני הלקוח

שיפוץ דירה: תהליך השיפוץ דרך עיני הלקוח

הכי טוב ללמוד מניסיונם של אחרים! סיפור אישי על שיפוץ דירה מנקודת מבטו של הלקוח. כולל טעויות שנעשו בדרך, לקחים וטיפים שכדאי לזכור.

מאמר מאת צוות שיפוצים פלוס

פורסם ב-19/01/2016 10 דק' קריאה

מתכננים שיפוץ ולא יודעים איפה להתחיל? אתם בעיצומם של שיפוצים ונתקלים בקשיים? סתם חולמים לשפץ יום אחד? לשמוע פרטים על שיפוץ דירה ממי שכבר עשה את זה תמיד עוזר בהבנת התהליך, המורכבות, העליות והמורדות.
תומס סיים לפני שנה שיפוץ מקיף בדירתו שבצפון תל אביב. זהו שיפוץ שהחל בכלל בחלום - שהופך רחוק מאוד לאנשים רבים במציאות של ימינו -  על קניית דירה חדשה. "בשנת 2010 חיפשתי ברצינות עם בן זוגי דירה חדשה לקניה", הוא מספר, "ואז התפוצצה הבועה והמחירים עלו בדראסטיות מטורפת. אמרנו: 'טוב, נחכה שהמחירים יירדו ואז נקנה. כולנו יודעים שזה לא קרה. כשהבנו שקניית דירה כבר לא תהיה אפשרית, החלטנו לשפץ".

פרק ראשון - תכנון ותחקיר של שיפוץ דירה

בשלב זה, כשהרעיון עוד בחיתוליו, החליטו תומס ובן זוגו לפנות למעצבת פנים שעבודותיה הקודמות הלהיבו אותם מאוד. "זו מעצבת פנים מדהימה שבדרך כלל לא עובדת עם אנשים פרטיים", מספר תומס, "שכנענו אותה שיש בינינו קליק  והיא הסכימה לעבוד איתנו. היא תכננה לנו בית חלומות. אבל אז נתקלנו בבעיה".
כשפנו תומס ואמיר לקבלנים כדי לברר כמה יעלה השיפוץ לפי התכנית של מעצבת הפנים, הם גילו שמדובר על שיפוץ שעומד על מחיר של כ-3.5 מיליון ש"ח. לא בדיוק בטווח האפשרי עבורם.


"הבנו שזה לא יקרה", מספר תומס, "המשכנו הלאה ואמרנו שנקדיש לשיפוצים סכום של בערך חצי מיליון ש"ח. בהמשך לקחנו עוד מעצב והבנו שהוא ממש לא טוב, הוא אפילו לא ידע את המידות הנכונות של הבית כשהלכנו לראות מטבחים. הבנו שזה גם לא יילך".

ואז מה עשיתם?

"אמיר בן זוגי הוריד תוכנת תלת מימד לעיצוב בית. בשלב זה כבר שילמנו עשרות אלפי שקלים למעצבים שבסוף לא התקדמנו איתם. הבנו שאת 'שכר הלימוד' שלנו כבר שילמנו. הוא הוריד תוכנת מחשב והתחלנו לשחק בה לבד. השתמשנו בתוכנת תלת מימד של גוגלועבדנו גם עם המשקפיים של גוגל - שמים את המשקפיים, וניתן לראות את כל הבית בתלת מימד. אחר כך הלכנו לבחור את החומרים. כדי לבחור במרצפות שיתאימו לנו לקחתי שיער של החתול ושיער שלנו, ובדקתי על איזו מרצפת לא יראו את השיער. אני נוהג לשטוף את הרצפות בלי הרבה מים, אז העברתי סמרטוט חצי לח על המרצפות כדי לבדוק. עשינו עבודת תחקיר מעמיקה ועייפנו את כל נציגי השירות". 


עבודת התחקיר ארכה כמעט שנה, כאשר את הקרמיקות והחדרים הרטובים בחרו בחזי בנק ובויה ארקדיה.
את תכנית המטבח בנתה עבור בני הזוג המעצבת מהחנות בה רכשו את המטבח, ממנה היו מרוצים מאוד. היא בנתה עבורם תכנית מפורטת עם נקודות מים וחשמל, אשר מאוחר יותר שימשה את קבלן השיפוצים בעבודתו. בשלב הזה התחילו לחפש קבלן.

גרגורי בנימינוב

ציון 9.3 29 חוות דעת

איציק אזולאי

ציון 9.65 21 חוות דעת

אריאל אביקם

ציון 9.82 7 חוות דעת

אפיק כהן

ציון 9.96 6 חוות דעת

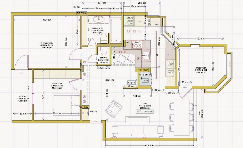
תוכנית אדריכלית

תכנית הדירה כפי שתוכננה על ידי הלקוחות עצמם

פרק שני - קבלן

"כמעט כל מי שידענו ששיפץ את הבית ודיברנו איתו, אמר לנו לא לקחת את הקבלן שלו", מספר תומס, "אנשים סיפרו שהקבלן גנב מהם כסף, שדחה כל הזמן את סיום הפרויקט..  אלף ואחד דברים. כולם היו עם טראומות. התחלנו לדבר עם קבלנים ולחפש באתר. היה בחור מהמשולש שנראה ממש אחלה בהתחלה, עד שהגענו לכתב כמויות. שם הוא לא פירט ורק כתב לנו את המחיר הסופי. ניסינו להבין מה קורה אם יש איזו תוספת וזה לא היה ברור. משהו בתקשורת של המיילים הרגיש לא נכון".


בהמשך הגיע קבלן נוסף שנכנס לבית כמו רוח סערה. "הוא אמר: 'אה, זה שטויות. תוך שבועיים-שלושה אני מסיים לכם את כל הבית'", מספר תומס, "אני לא יודע לדפוק מסמר בקיר אבל אני יודע שזה לא יתכן לסיים הכל שבועיים-שלושה. הוא גם נתן הצעת מחיר נמוכה בטירוף. זה ממש היה ברמה של 30-40 אלף ש"ח. הבנו שמשהו לא טוב".

איך בחרתם בקבלן בסוף?

"הגענו לליאור דרך האתר שיפוצים פלוס הוא היה הרביעי או החמישי בסדרה של אותו שבוע. אמרנו שכבר אין לנו כוח לזה ונעשה פשוט כל פעם חדר אחר כפרויקט, לאט לאט. ואז הגיעו ליאור ובוריס. הם ישבו בסלון שלנו, והיה פשוט חיבור מיידי בינינו. הבנו שזה 'זה' ואמרנו להם 'טוב, בואו נגיע להצעת מחיר'. ליאור לא הסכים והתעקש שנראה עבודה שלו לפני שאנחנו מחליטים. 


העדפתי לראות דירה שלו בזמן שיפוץ דירה, כי כך יכולתי לראות את האנשים שעובדים ואיך הם עובדים. ראיתי בשיפוץ דירה איך עובדים בצורה מדויקת על המרצפות וזה עשה עלי ממש רושם טוב. את הצעת המחיר הוא שלח לנו במייל בצורה מסודרת מאוד. הוא פירט כל דבר שרצינו ואת המחיר שלו. בנוסף, הוא כתב כמה יעלה לנו להוסיף עוד משהו אם נרצה והוסיף אופציה שניה".

איך היה המחיר?

"הוא היה יקר יותר ב-12,000 מההצעה הכי גבוהה שקיבלנו אבל בגלל שהאמנו שלא ידפוק אותנו לקחנו אותו. אני מאמין שבסופו של דבר יצא שהוא יותר זול מכולם כי הוספנו ושינינו דברים, והוא לא לקח שקל. הגענו למצב שאנו נלחמים בו לתת לו אקסטרה כסף. למשל, על מפסק לדוד שהוא קנה לנו ב-600 ש"ח, כשלפני השיפוץ סגרנו על מפסק הכי פשוט ב-30 ש"ח. היו גם שינויים גדולים שעשינו. בהתחלה אמרנו שנעשה הדבקה של המרצפות החדשות על הקיימות. בסוף הוצאנו את הבלטות וריצפנו מחדש, והוא לקח באמת פרוטות על אקסטרה עבודה".

מחפשים קבלן שיפוצים?

או

חוות דעת בסיום העבודה על הקבלנים - ליאור ובוריס

פרק שלישי - העבודות

תכנית השיפוצים כללה הרחבת המטבח החלפתו וביטול "אי" שהיה בתוכו, הקטנת החדר הצמוד למטבח, ריצוף מחודש וצביעה של כל החדרים בבית, החלפת מערכות החשמל, האינסטלציה והתאורה, החלפת כל הדלתות ושיפוץ דירה כולל של חדר השירותים/מקלחת. תהליך השיפוץ כולו ארך שלושה חודשים.

הדינמיקה במקרה הזה בין הלקוחות לקבלן הייתה ייחודית, לא בטוח שמתאימה לכל סוג של לקוח. ודאי שלא לכל סוג של קבלן. "על כל דבר התווכחנו", מספר תומס, "הוצאנו לליאור את המיץ. יש למשל את קופסאות הביקורת של החשמל - העיגולים המכוערים בקיר שאני ממש סירבתי לשים אותם. לא הבנתי למה אני צריך את זה. ליאור אמר לי: 'תקשיב, אתה עושה פה חשמל תלת פאזי וחייבים את זה, אי אפשר לרמות. אני לא אעשה לך משהו לא חוקי פה'. לצערי. הוא לא השאיר לי ברירה. הוא אמר 'אני אמרח על זה עוד שפכטל, אצבע את זה בעוד צבע ותראה שכמעט ולא יראו את זה'. אני עדיין רואה את זה".

היו אלמנטים בבית שהייתם צריכים לבחור במהלך העבודות?

"כן. ארונות, דלתות, חלונות ותאורה. ליאור הקבלן בא איתנו. הוא לא המליץ על שום דבר אבל הוא עזר לנו מאוד. לא הבנו כלום בדלתות למשל. ידענו רק שאנחנו רוצים דלתות קו אפס שלא יבלטו. התחלנו לחפש, ליאור בא איתנו ועזר לנו להבין ענייני מידות, חישב בדיוק את גדלי הדלתות. לגבי התאורה הוא לא בא איתנו אבל הנחה אותנו בדיוק מה לבקש".

איפה התאכסנתם בזמן השיפוצים?

נשארנו בבית באחד החדרים בתקופת השיפוצים. החתול היה בשמיים בגלל שכל הבית היה ארגז חול. חיינו בלי מקלחת ובלי שירותים. אני התקלחתי בחדר כושר וכל ערב נסענו לדרום תל אביב לחבר שלנו. היינו הולכים אליו, מתקלחים, משתמשים בשירותים, אוכלים, חוזרים ונחים. רק אחר כך היינו חוזרים הביתה לישון".

פיקחתם על העבודה באופן צמוד או שנתתם למשפצים חופש?

בזמן שהשיפוץ התקיים היינו עם היד על הדופק כל הזמן. זה הפריע מאוד לקבלן. אני גם מבין למה זה הפריע לו. אבל מהצד שלנו, אנו לא נעשה שוב שיפוץ דירה בסדר גודל כזה וזו חתיכת סכום של כסף שהשקענו. חשבנו לפני כן שאולי נביא חברה מקצועית לפקח על השיפוצים ואפילו הכנסנו סעיף כזה בחוזה אבל לא היה בכך צורך".

היו דברים שהתעכבתם עליהם במהלך העבודות, שדרשו תשומת לב מיוחדת?

"היה לנו את עניין התקרה. היא נראתה כמו פרצוף של ילד בין 14, מלאה בליטות וחטטים. נראתה על הפנים, צהובה ומגעילה. התחלנו לחפש דרכים להפוך אותה לחלקה. ליאור המליץ לנו על שיטות. שיטה אחת היתה להדביק בד שעליו עושים שפכטל, וזה נותן אפקט מראה כמו באולמות יוקרה. לא התאים לנו. אחר כך הוא דיבר על לוח גבס אבל לא רצינו, כי התקרה שלנו נמוכה. בסופו של דבר הוא עשה שש שכבות של שפכטל אמריקאי. בלילה הייתי מאיר עם פרוג'קטור על התקרה לבדוק אם יש בליטות וסימנתי עבורו. היו גם דברים מסויימים בשיפוץ דירה שעבורנו היו פחות חשובים אבל הוא התעקש איתנו".

מה לגבי התיאום בין האנשים האחראיים על האלמנטים הנוספים כמו מטבח, פרקטים וכו'?

"ליאור הקבלן עשה עבורנו את כל התיאומים. כך שהכל תקתק. הוא היה כאן כשהמטבח הגיע וראה כל מיני דברים שאנו לא ראינו. הוא תיאם עבורנו את ההובלה של התאורה, כשהם איחרו בשעתיים הוא נסע להביא אותה בעצמו. כשהיה חוסר בקרמיקות הוא נסע להביא".

ריצוף

ריצוף מחודש של הדירה

פרק רביעי: מסקנות

היית ממליץ לאחרים לפקח גם על הבניה מקרוב?

"כן, הייתי ממליץ לפקח על הבניה. לנו זה עשה טוב. זה גם יוצר סוג של חברות. בצהריים הבאנו לעובדים אוכל פלאפלים וחומוסים. היה לנו הווי נחמד וזה יצר אווירה שבגללה כל אחד רצה להשקיע כי טוב לו. לא כי הוא רוצה לסיים וללכת. אם לא הייתי נמצא פה במהלך העבודות לא הייתי יודע אם הם אוכלים או לא. אם הם רעבים או לא. אם חם או קר להם. גם כשהיה נקודה אחת של חשמל אני דאגתי להביא תנורי חימום לעובדים כי השיפוץ היה בחורף. כשהבנו שזה מטומטם ובכלל חם להם, הבאנו מזגנים כדי שלפועלים יהיה נעים. אני מאמין מאוד ב'שלח לחמך'. אני נותן לו מזגן והוא נותן לי עבודה טובה ואפקטיבית".

מה היית עושה אחרת?

"הייתי משחרר טיפה מהלחץ. בהתחלה כשהיו מניחים מרצפות הייתי בא ובודק אם זה ישר. עכשיו אני מבין שזה נתפס כמזלזל בקבלן ובעובדים שלו. אני לא הבנתי את זה באותו הרגע. גם הייתי מאפשר לו יותר. עכשיו כשאני מכיר את הקבלן אני יודע שהוא אדם טוב והייתי בדיעבד נותן לו יותר מרווח נשימה לדברים שהוא רצה".

שיפוץ דירה - חיפוי אריחים

חיפוי אריחים לאסלה סמויה

יש בחירות ספציפיות שהיית עושה אחרת בשיפוץ דירה?

"הייתי מתעקש על פלטת גבס בתקרה. אמיר לא רצה כי זה ינמיך את התקרה ואני הסכמתי איתו. בדיעבד זה היה טוב יותר. באמבטיה לא הייתי עושה פסיפס שיש. כשמתקלחים קצת סבון נופל על השיש ואם לא שומרים טוב זה נהרס. לא בטוח מה הייתי עושה במקום. אולי פסיפס גרניט".

הבנו שהיית קפדן במיוחד בבחירה וקניה של המרכיבים מסביב לשיפוץ דירה (קרמיקות וכו') אילו בדיקות מעניינות עשית?

"כשבחרנו דלתות בדקנו את עניין טביעות הידיים: שלא יישארו על הדלת. במקרה של המטבח, אמרו לנו שגרניט זה החומר הכי טוב ושהוא לא מתחמם. כדי לבדוק לקחתי פלטה של 5 על 5 והנחתי סיר רותח של פסטה ישר עליה. את הכיור ניסיתי לשרוט, כי אמרו שזה לא נשרט. זה באמת לא נשרט. וכמובן: עשיתי בדיקה של הריצוף בעזרת מים.

שפכתי בכל פעם כוס מים במקום אחר כדי לבדוק שאין זווית בריצוף. דווקא באמבטיה יש זווית וממש התעצבנתי על ליאור בגלל זה. אבל אז הוא הסביר שהוא בנה את הרצפה כך כדי שהמים ירדו לחור הניקוז. על כל דבר היינו צועקים עליו. מסכן. זה הגיע לרמה שהייתי נוסע איתו לקנות חומרים. הוא היה אומר לאשתו בספיקר שהוא איתי, ואז אשתו היתה אומרת: 'למה אתם רעים אליו? הוא באמת אוהב אתכם'".

המידע המקצועי שיש באינטרנט עוזר בפיקוח ובדרישות מהקבלן?

"אני חושב שכן. לפחות בהבנה של מה שצריך להיות, אם לא בפיקוח. זה עוזר מאוד במה שקשור לחשמל, צביעה וריצוף. אבל היו גם מקומות שקראנו משהו מסויים והוא עשה אחרת. למשל, הוא מרח בין שפכטל לשפכטל חומר שנועד למנוע סדקים. זכרתי שקראתי על זה באיזה אתר ושקבלנים כתבו שהם לא עושים את זה. שאלתי על כך את ליאור, שאמר שיש כאלה שלא עושים ואז הם מגיעים אחת לשנה-שנתיים ומתקנים את הסדקים".

מכל הניסיון שצברת עד כה בתחום השיפוצים, מה היית ממליץ למי שמעוניין לשפץ?

"קודם כל, אני ממליץ לרבים ממכריי על בוריס וליאור. הם יותר יקרים ממחיר השוק אבל אני ממליץ עליהם בחום כי אני מאמין שהם טובים ואמינים. זה שווה יותר מכל דבר אחר. עוד דבר שאני אומר הוא להקשיב ולהאמין לקבלן. כמובן שקודם כל צריך לבחור בקבלן אמין ורציני. אחר כך - צריך להקשיב לו ולהאמין לו. אם הוא אומר 'אני אביא לכם את החומר בפחות כסף' לא כדאי לחשוב מיידית שהוא רוצה לחסוך על גבכם. קבלן השיפוצים מומחה בתחום. הוא יוצא לקורסים והשתלמויות מקצועיות. הוא מעודכן. צריך להבין שהוא יודע על מה הוא מדבר וצריך להאמין לו".

מחפשים קבלן שיפוצים?

או

המאמר עזר לכם?

שאלו את המומחים בפורום

שאלו שאלה