שיפוץ דירת קבלן מחיר למשתכן
שלום,
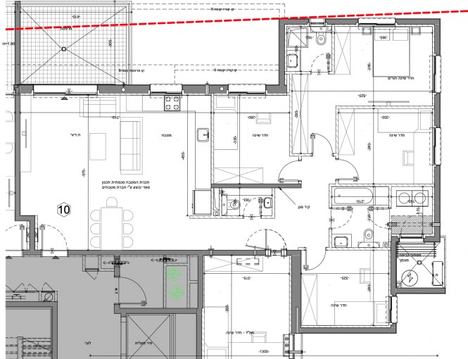
אני עתיד לקבל דירה מקבלן במסגרת מחיר למשתכן , מדובר בדירת 6 חדרים .
ישנו חדר שצמוד למטבח שאנחנו מעוניינים להגדיל את שטח המטבח+סלון לקבל מרחב גדול יותר .
האם לפי התמונה המצורפת ניתן לשבור את הקיר שצמוד למטב ולבטל את החדר שינה הנ״ל ?
בנוסף צמוד יש גם קיר מגן ושירותי אורחים . האם ניתן לשבור את קיר המגן לע מנת להגדיל את החלל עוד יותר?
תודה רבה.

6 תגובות
עידו מזרחי
קבלן בניה קלה
היי זאת תכנית אדריכלית ולא הנדסית. לגבי כל הנוגע ההסרה של קירות יש לקחת בחשבון מה המוטיב הקונסתראקטיבי של הקיר . במידה ומדובר בקיר תומך מדובר בסכנה אם לא תומכים במקומו בצורה אחרת . כגון פלדה וכדומה
גבי חנונה
מפקח בניה ושיפוצים
1. תמיד תוכל לבקש ממנהל העבודה באתר שיספר לך איזה קיר עשו בפועל . במידה וזה בלוקים ניתן להריסה קיר בטון הוא קיר המחזיק את שאר הקומות ולכן אסור לשבור .
2. אם בוצע לפי התוכנית אז כל הקירות הבהירים זה קיר בלוק וניתן להסיר וכל הקירות הכהים הם בטון ואסור להסיר .
3. המידה ובכל זאת חייב לשבור קיר בטון חייב אישור קונסטרוקוטר הקבלן שביצע בתוכנית חתומה וברור שיהיו חיזוקים אחרים במקום כמו קורת פלדה

איתן יעקובי
קבלן שיפוצים
קיר מגן לא ניתן לשבור, לגבי הקיר בין המטבח לחדר השינה צריך לבדוק בגרמושקא האם הוא קיר תומך או לא, על פניו נראה שלא