טיפ לניצול החלל
אשמח לקבל טיפים לניצול מקסימלי של החללים
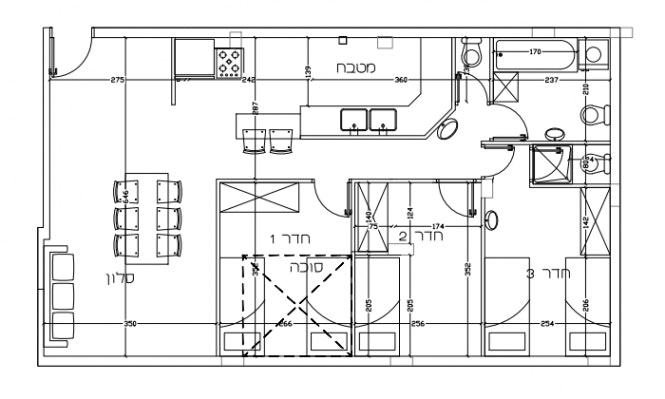
הבית הוא בית דתי

17 תגובות

חסדיאל שופק
אדריכל
א. מוטי שלום לך, תראה אפשר לתת כמה טיפים אבל בגדול אל תוותר על שירות מקצועישל איש מקצוע, שום דבר לא ישווה לזה, ולהשקיע אחוזים בודדים מהתקציב בשביל לעשות את העבודה בצורה הנכונה לכל החיים... זה שווה.
.
ב. יש שם כמה דברים מוזרים ביחידת הורים ובמטבח
זוהר לבנון
אדריכל
שלום רב מוטי ,
בתכנית קיימות המון טעויות תכנון שמונעות ניצול אולטימטיבי.
נדרש לעשות שינויים בכל חדר בנפרד ע"מ להגיע לאיזון ומיצוי טוב יותר.
מוזמן לפנות ישירות.
בברכה,
זוהר לבנון אדריכלות ועיצוב
נאוה ליפשיץ
אדריכל
על מנת להגיב נחוץ לי להבין את ההקשר, באילו קירות יש חלונות עם המימדים והמיקום המדוייק. היכן הצפון? מה רואים מהדירה דרך החלונות? באיזה אזור בארץ? מהיכן באה הרוח? כמה ילדים/גילאים. ויש עוד 7 נושאים למחשבה שאני מבקשת תמיד לפני העבודה, כדישאוכל להבין את הצרכים שלכם כמשפחה ואז אני נוהגת לעשות מפגש לגיבוש פרוגרמה.
האם זה בית משותף האם יש קשר כלשהו לחצר/החוצה?
מוטי
אורח (שואל השאלה)
הדירה עם שני כיווני אוויר שהם מזרח ודרום והחלונות לכיוונם שזה בחדר אמבטיה שינה שני חדרים וסלון, בקיר של המטבח ובצד של הספה בסלון אין חלונות. מהדירה אין נוף כלל בשום כיוון כך שאין משמעות לנושא, הדירה בקומה א' בבני ברק. הדירה אמורה הכיל כשבע נפשות
נאוה ליפשיץ
אדריכל
לא אוכל לייעץ ללא תוכנית בקנה מידה עם הפרטים ועם תשובות שלכם לנקודות למחשבה ובקשות שלכם זה כללי מידי טיפים לייעול(:
נאוה ליפשיץ
אדריכל
(המשך..ו)עוד לא ברורים לי הצרכים של המשפחה ביחס לחדר המגורים/סלון. האם ויתרתם עליו לטובת פינת אוכל גדולה ל-5 ילדים הורים ואורחים? רק אחרי הכרות עמוקה עם המקום והשלמת כל הפרטים החסרים: צפון וקנה מידה ולאחר הכרות עמוקה ואיתכם, אוכל להגיב לחלופה הזאת.
מוטי
אורח (שואל השאלה)
מבחינת הפינת אוכל פחות חשוב לי גודלה מכיוון שלא אוכלים שם כולם יחד וכמו"כ כשרוציםניתן לאכול בשולחן בבסלון
נאוה ליפשיץ
אדריכל
אני לא יכולה לתת ייעוץ בלי הנתונים שביקשתי. בלי לפגוע זה לא איך מתקנים פנצ׳ר(: אין בעיה לתת מידע אבל זה לא משהו טכני קצר לעדות שיקולי תכנון ולא ניתן לעשות את זה ללא תוכנית עם כל המימדים ועם שיחה, שיחות להבין את צרכי המשפחה.
נאוה ליפשיץ
אדריכל
כדי לתת ייעוץ רציני צריכה תוכנית בקנה מידה סימון צפון וחלונות קיימים ולדעת אם יש סיכוי לשנות אותם. איך הדירה מתחברת לקרקע ואיך לחדר המדרגות. שלח לי לפרטי
נאוה ליפשיץ
אדריכל
עוד בעניין הקורה, תמדדו את העובי שלה מהצילום היא נראית דקה. אם היא בעובי של 10-12 ס״מ סביר שניתן חהרוס אותה אבל רק באישור מהנדס ובעל הבית כמובן.
ליה מלחי
מעצב פנים
שלום מוטי , הטיפ שלי , בדיקה מחדש של החלל , אם אתה לא מעוניין בשינויים גדולים אך בהתאמה אתה יכול לבקש שירות יעוץ שעתי , כל משפחה עם הצורך שלה , משפחה דתית או לא , זה הרבה מעבר לכך , במידה ותהיה מעוניין ביעוץ ענייני ומותאם לך ולמשפחתך , אתה מוזמן ליצור קשר . ליה
לאה פאר
מעצב פנים
היי, אחסון עליון במטבח, אחסון מעל מכונות כביסה/מקרר. ניצול אחסון ארונות לתקרה בחדרי שינה, במבואת כניסה יש חלל גדול לאחסון בצד השני שמצויר מקרר. זמינה לשאלות