היי, חדר השינה שלי נראה קטן חושבת אם בכלל להכניס ארון לחדר , האם ניתן להוריד/ להקטין
את הקיר של חדר הרחצה ?
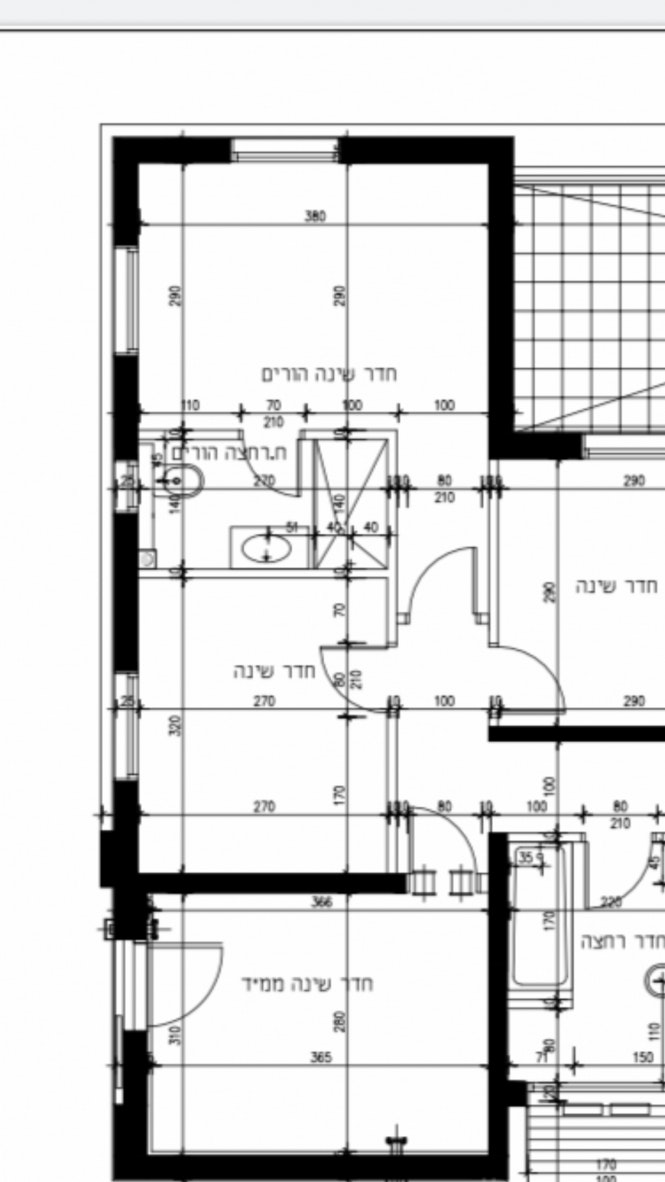
מצרפת תמונה

8 תגובות
בן צור
מעצב פנים
חדר השינה אינו קטן במושגי הבניה הרבוייה. אינך מציינת את גודל מיטת השינה..אינך מציינת את מספר הילדים בחדר הצמוד. קשה לענות על שאלה חסרת פרטים.
בן צור
מעצב פנים
חדר השינה אינו קטן במושגי הבניה הרבוייה. אינך מציינת את גודל מיטת השינה..אינך מציינת את מספר הילדים בחדר הצמוד. קשה לענות על שאלה חסרת פרטים.

דני סוסנר
אדריכל
אורנה שלום
זו דוגמה עצובה לתכנון אדריכלי גרוע !!!! יש לך אחת מארבע אפשרויות שבכולן יש וויתור/פשרה:
1. לוותר על המקלחת, ולבצע ארון 140 ס"מ מצד הפרוזדור המוביל לחדר השינה.
2. לבצע ארון מימין לפרוזדור על חשבון הקטנת חדר השינה של הילד.
3. לבצע ארון גדול בתוך החדר 290 ס"מ, על חשבון החלון השמאלי בשרטוט (ממש לוותר על החלון)
4. אותו ארון, אבל קטן יותר, שעוטף את החלון מסביב.
אורנה
אורח (שואל השאלה)
היי ,
דירה מקבלן (נכנסנו לפרויקט בקבוצת רכישה שסוף סוף אחרי 4 שנים התחילו לבנות - מקווה שלא יהיו מכשולים נוספים בהמשך )
לא חושבת שיש הרבה מה לעשות מלבד ביטול חדר הרחצה :(
תודה רבה על המענה

דני סוסנר
אדריכל
לא בטוח , חבל לוותר על המקלחת בחדר הרחצה. ללא בחינה מקיפה של כמות האחסון והארונות בבית.
מוזמנת לקבוע איתי פגישת יעוץ, בטוח שאוכל לעזור .
יואלה בר-טל
מעצב פנים
ממליצה למקם את הארון (דלתות הזזה) מול הכניסה בקיר הימני ביותר. עם מיטה ברוחב 160 ישארו לך מעברים של 80 ס"מ. זה די מרווח ונעים.
לאה פאר
מעצב פנים
היי , כן אפשר להגדיל חדר שינה על חשבון הרחצה. שינוי מיקום סניטריות ודלת הזזה יתנו לך פתרון מצויין