בית

>

אדריכלים

>

שאלה : התייעצות בנוגע למיקום דלת

הקלידו כאן שאלה ותקבלו תשובה מהמומחים שלנו

שאלו שאלה

התייעצות בנוגע למיקום דלת

פורסם על ידי שירקר
24/07/19

היי, אשמח להתייעצות ממביני עניין :)

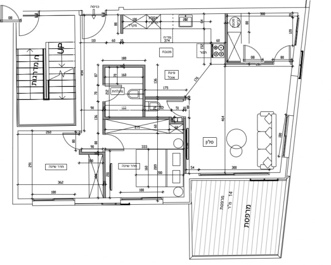
אנחנו מתכננים חצי חדר שמעין יוצא מהסלון (מוקף באדום בתמונה) ומתבלטים לגבי מיקום הדלת שלו. האם כדאי שהדלת תהיה ותפתח על הקיר (העקום ושעשוי כולו מחלון מסך) או שעדיף שתהיה יותר במרכז החלל ותפתח על הארון שמתכונן בתוך החדר? איזו אופציה מפריעה פחות לנראות של הסלון אך גם מנצלת נכון את הצורה והגודל של חצי החדר?

בשרטוט- שמתי את שתי האופציות :)

תודה רבה!

6 תגובות

לדעתי האישית אם יש לך אפשרות כלכלית הייתי מציע לך לחשוב על תכנון חדש, במיקום של המטבח לתכנן חצי חדר ובמיקום חצי החדר לתכנן את המטבח כך שישתלב עם הסלון.

תודה רבה! הבעיה היא שאין שם חלון ולכן זה ייצור חדר ללא חלון וגם ייצור מעבר צר בכניסה.. יש לך רעיון להתגבר על זה אולי?

שלום רב
ירון צודק וארשה לעצמי להיות יותר בוטה, לפעמים איש מקצוע טוב חייב לומר ללקוח גם , מה אי אפשר ומה לא בא בחשבון. לא ברור מהשאלה אם מדובר בתוספת מחסן או חדר עבודה (בטוח לא חדר שינה עם מכונת כביסה). ממליץ לחשוב מחדש.
אם מדובר בשיפוץ כללי של כל הדירה, המלצתי להחליף מתכנן.
בתכנית הרבה אילוצים, מידות לא תקניות ורואים חוסר ניסיון. לא טוב וחבל.

תודה רבה על ההתייחסות. אנחנו מודעים לאילוצים הרבים בתכנון ואני חושבת שהם נובעים מהרצון שלנו לעשות שירותי אורחים ובנוסף חצי חדר נוסף (שיהיה חדר משחקים/חדר עבודה). לא הצלחנו לתכנן בדרך אחרת טובה יותר כך שכל אלו יכנסו לדירה. האם יש לך רעיון איך אפשר לתכנן טוב יותר עם שירותי אורחים וחצי חדר?
תודה רבה מראש

בוקר טוב
האופציה העדיפה היא כשהדלת נפתחת על חלון המסך. גם יותר נח לשימוש בארון שרות, גם יותר אסטתי כלפי הסלון וגם משאיר קיר רציף לכוון הסלון ומאפשר לנצל את הקיר לתליית תמונה, או לשים שידה וכו. בהצלחה!

תודה רבה:) שיהיה סופש נעים