בית

>

מעצבי פנים

>

מאמרים

>

שיפוץ מודרני ל-6: עדינות מתונה בעיצוב בית פרטי בשוהם

תוכן עניינים

שיפוץ מודרני ל-6: עדינות מתונה בעיצוב בית פרטי בשוהם

כך הפך בית בסגנון ארץ ישראלי עם נגיעות קולוניאליסטיות לבית נקי ומודרני המתאים למשפחה גדולה

מאמר מאת צוות שיפוצים פלוס

פורסם ב-23/10/2017 3 דק' קריאה

שיפוץ של בית פרטי בשוהם התחיל מבית בסגנון ארץ ישראלי עם נגיעות קולוניאליסטיות, והפך לבית נקי ומודרני כדי להתאימו למגוריה של משפחה בת שש נפשות. השיפוץ, שנעשה על ידי מעצבת הפנים עדי אדליס בשיתוף פעולה הדוק עם הקבלן גבריאל מזרחי, כלל הרחבת המטבח, שינוי מבנה קומת חדרי הילדים, יצירת חדר ילדים נוסף והפרדת חלל שירות מהקומה. כמו כן שופצו חדר הרחצה של הילדים, נבחר ריהוט, תוכננה נגרות ובוצעה הלבשה של כל חללי הבית.

אלכסיי וסרגיי מולוצ'ניק

ציון 9.98 10 חוות דעת

מירב סואד

ציון 9.75 18 חוות דעת

טלי דורה אדריכלות

ציון 9.7 5 חוות דעת

מיכל אהרוני גובס

ציון 9.89 9 חוות דעת

החלל המרכזי של הבית. גווני אפור ותכלת.

קומת הכניסה רוצפה כולה באריחים דמויי בטון בגוון שמנת עדין בגודל 120*120 (ויה ארקדיה), המהווים רקע עדין לעיצוב כולו. גם שירותי האורחים רוצפו באריחים אלה, וחופו באריחי בטון עם דוגמת תחרה עדינה. אלה שולבו לצד ארון עץ אלון טבעי עם פרט סיום בגרונג, כיור אבן וברז תכשיט של חברת WATERMARK.

מחפשים מעצב פנים?

או
קומת הכניסה רוצפה באריחים דמויי בטון.
 הסלון עוצב בחומרים טבעיים

סלון הבית עוצב בחומרים טבעיים, הריהוט נבחר בחברת ריהוטים וכולל שתי ספות אפורות FREE STANDING, שגם הגב שלהן מעוצב, ושתי כורסאות בגוון ג'ינס ועץ. שולחן הסלון והשידה משלבים עץ וגמר בטון אפור טבעי, וכך גם ספריית הנוי שבחלל. וילונות פשתן בגוון אפור עדין (אורית טראוב) מרככות את החלל ומלבישות אותו. שתי מסכות אפריקאיות (צחי נבו) משלימות את עיצוב החלל. התאורה (קמחי תאורה) ומערכת השמע בחלל מוסתרים כולם בתקרת גבס, והם חלק מהבית החכם.

סגנון מודרני במקום קולוניאליסטי.
הנגיעות הקולוניאליסטיות הוחלפו בסגנון מודרני

שירותים בגווני בז' ושחור.
שירותי האורחים

המטבח נמצא בדיוק מול דלת הכניסה לבית, ועל כן עיצובו הנקי חשוב כל כך. הוא הוזמן בחברת פורצלנוסה הספרדית, והותאם לצרכיה של משפחה דתית, הזקוקה לשטח אחסון רב, כיור כפול, מיקום נוח לפלטת שבת ומיחם וכמובן אחסון. הפלטה והמיחם זכו למקום קבוע, וכך הם ממוקמים לאורך כל השנה על השיש בחדרון השירות הצמוד למטבח. מקרר בילט-אין בקיר הארונות הגבוהים תורם לניקיון ולמינימליזם, ומשטח עבודה DEKTON של חברת קוסנטינו הספרדית משלים את התמונה.

מטבח מרווח עם מקומות אחסון רבים.
המטבח הותאם לצרכיה של משפחה דתית הזקוקה לאחסון רב

דלת חדר השירות נצבעה בגוון זהה לארונות המטבח, וחדר השירות כולל גם ארונות אחסון לחומרי ניקוי, מגירות מאווררות לתפוחי אדמה ובצל, מקרר נוסף ועוד.

אל הקומה השנייה עולים במדרגות עגולות, שריד לבית המקורי, שחופו במדרכי עץ אלון המותאמים לפרקט האלון שבקומות המגורים, והמעקה הקיים נצבע בשחור. בקומה זו שונתה חלוקת החלל, כך שתכיל שלושה חדרי ילדים מרווחים ונוחים, ועדיין תשמור על חדר הרחצה הנוח ועל מבואה גדולה ומוארת. במבואה נוספה ספרייה המשמשת את כל דיירי הבית, ובוצעה, יחד עם כל הנגרות, על ידי דני הנקר.

המדרגות חופו במדרכי עץ אלון.
המדרגות חופו במדרכי עץ אלון

ספריה מודרנית ירוקה בקווים אלכסוניים.
ספרייה גדולה תוכננה במבואת הקומה השנייה

מבט קרוב יותר אל הספריה.
הספרייה משמשת את כל בני הבית

בחדר השינה של ההורים שולבה מיטת עור (ריהוטים) עם נגרות של דני הנקר, וטקסטיל עדין (אורית טראוב). מצעים לבנים מ-100% כותנה הופכים את חדר השינה למלון יוקרתי.

חדר השינה של ההורים.
מראה יוקרתי לחדר השינה של ההורים

חדר רחצה במבואה של חדרי הילדים בצבעי כחול.
חדר הרחצה במבואה של חדרי הילדים

בחדר הבת הצעירה נוצרה נישה עמוקה שקלקלה מעט את מבנה החדר. הנישה נסגרה בדלתות בצורת בית בגוון תכלת, שבתוכן דלתות קטנות המתאימות לכניסה ויציאה של ילד צעיר. הנישה היא למעשה ארון בגדים וארון משחקים, והפכה בעצמה למשחק מהנה. עיצוב החדר הושלם בעזרת טפט בגווני הארון, וילון עדין וכיסוי מיטה וכריות.

חדר שינה צבעוני וארון בגדים בצבע לילך המשמש גם למשחק.
ארון הבגדים מסתיר נישה עמוקה ומשמש גם למשחק

טפט בצבע תכלת עם ציפורים.
עיצוב החדר הושלם בטפט בגווני הארון

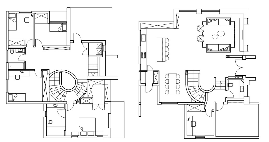
תכנית אדריכלית של הבית.


תכנית הבית - מימין קומת קרקע, משמאל קומה עליונה

עיצוב פנים: עדי אדליס

צילום: טל ניסים

מעצבי פנים: רוצים שנעשה כתבה גם על פרוייקט שלכם? צרו קשר

מחפשים מעצב פנים?

או

המאמר עזר לכם?

שאלו את המומחים בפורום

שאלו שאלה