תכנית חשמל - מה חשוב שיהיה בה?
מאמר מאת צוות שיפוצים פלוס
תהליך בניית התכנית לשיפוץ הבית כוללת גם תכנית חשמל ותכנית אינסטלציה, על פיהם יבצע קבלן השיפוצים את עבודתו. התכנית חשובה מאוד מכיוון שעליה מתבססות העבודות, וטעויות בה יובילו לטעויות בשטח. כיצד נדע מה כוללת התכנית ועל מה כדאי להקפיד? שאלנו את האדריכלית מאיה וייטמן מהם הדברים הבסיסיים אותם צריך לדעת כאשר בונים תכנית חשמל בבית:
עוברים לתלת פאזי
ההחלטה הראשונה שצריך לעשות כאשר בונים תכנית חשמל חדשה לבית בשיפוץ הוא להחליט אם נשארים עם החשמל הקיים או עוברים לתלת פאזי. ברוב הדירות הישנות החשמל אינו תלת פאזי, ולכן אין לו יכולת מספיקה להחזיק את המכשירים הגדולים שצורכים הרבה חשמל במקביל, כמו מזגן, מייבש כביסה וכו'. משמעות ההגדלה לתלת פאזי היא שהבית מחולק עם מספיק נקודות כוח עבור כל צרכני האנרגיה הגדולים, שיוכלו לפעול במקביל. כך נפטרים מהתופעה של עומס יתר וקפיצת החשמל עם הפעלת מספר מכשירים בו זמנית. זו ההחלטה הכי חשובה ובסיסית בתכנית החשמל, ולרוב מומלץ לעשות את השינוי. כדאי לשים לב כי הגדלת התכנית לתלת פאזי מחייבת אישור של חברת החשמל ולכן עוד לפני תחילת העבודות יש ליצור קשר עם חברת החשמל ולתאם את הגעתם לשטח, כדי שלא ייווצרו עיכובים בתהליך. כדאי לשים לב לנקודה זו מכיוון שלרוב לוקח לחברת החשמל זמן עד שמתאפשר להם להגיע לשטח ובמקרים רבים נוצרים עיכובים לא נעימים ומתסכלים. עוד דבר שניתן לעשות בדירות ישנות הוא להגדיל את "רוחב הצינור" של כל פאזה (כל מערכת חשמל ביתית) מ-25 אמפר ל-40 אמפר (ההרחבה כוללת תשלום לחברתחשמל), או לחלק נכון את עומס הצריכה בבית.
שקעי כוח
לאחר הבחירה הבסיסית הזו יש להתחיל לבחור את הנקודות שנרצה כנקודות כוח. נקודת הכוח מיועדת למכשירים שהם צרכני חשמל כבדים הזקוקים ליציאה נפרדת מלוח החשמל אל השקע. הבחירה נעשית לפי החדרים בבית: בחדרים הרטובים לרוב תהיה נקודה למכונת הכביסה, נקודה למייבש ונקודה נוספת מעל השיש למייבש שיער או מכונת גילוח. הנקודות בחדר האמבטיה תהיינה עם כיסוי מיוחד, כדי שלא תהיינה חשופות. כאשר המזגן מפוצל תהיה נקודת כוח בכל חדר למזגן, כאשר בדרך כלל בכל חדר תהיה נקודת כוח אחת למזגן ולתאורה, הנחשבת צרכנית חשמל נמוכה. במטבח יש צורך בנקודות כוח רבות בשל ריבוי מכשירי החשמל המסיביים: הקומקום, המיקרוגל, התנור, קולטי האדים והמקרר. כמעט כל מכשיר חשמל בבית, מלבד טלוויזיה ותאורה, נחשבים לצרכנים גדולים של חשמל. מומלץ להכין טבלה עם כל צרכני החשמל בבית לפי עוצמת הזרם והמיקום שלהם - וכך ניתן לראות את העומסים הצפויים, ובהתאם לחלק את החלוקה בלוח.כך גם בתכנון של שיפוץ בבניין שלם - ללוחות החשמל בבניין מגורים יש תפקידים שונים וכל אחד מיועד למערכות שונות - המעגלים צריכים להיות נפרדים וכך מעגל אחד לא יפריע לשני (התאורה בחנייה לא תפריע לתאורה בחדר המדרגות). כל ארונות החשמל הם בבעלות הדיירים ובאחריותם, הם צריכים לתחזק אותם גם מבחינה בטיחותית.
מחפשים חשמלאי?

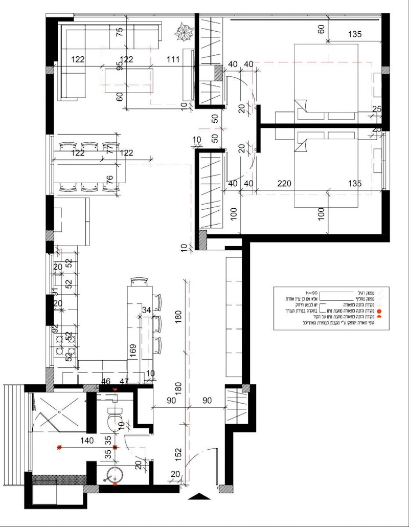
תכנית חשמל
שקעים רגילים
השקעים הבאים שנבחר בבית יהיו שקעים רגילים, שאינם שקעי כוח. אלה שקעים שישמשו למשל למנורת קריאה, מנורה עומדת, חיבור מטענים, לפ-טופים ועוד. השקעים הנוספים אמורים להבטיח שתהיה נגישות טובה של חשמל מכל מקום, ללא שום צורך במפצלים, חוטים מאריכים ושאר מילים גסות שכאלה. עלות עבודה על כל נקודת כוח תהיה כ-450 ש"ח ללא
מע"מ, כאשר עלות שקע רגיל היא כ-260 ש"ח ללא מע"מ.
גובה ומיקום שקעים
הסטנדרט של גובה השקעים שאנו רגילים לראות ביום-יום הוא גובה של כ-30 - 40 ס"מ מהרצפה, אלה שקעים שנראה בעיקר בסלון המיועדים למטענים, לארונית הטלוויזיה, לשואב אבק וכו'. מיקום השקעים בסלון הוא גמיש יותר מבמטבח ובחדר האמבטיה. בדרך כלל נמצא בסלון יחידה גדולה של 5-6 שקעים בגובה נמוך, שלרוב יוסתר באמצעות ארונית
הטלוויזיה. לרוב מוסיפים עוד 2-3 שקעים כדי שתהיה אופציה לצרכים נוספים. בחדר שינה גובה השקעים מתחיל גם הוא בסטנדרט של 30 ס"מ, ובודקים היכן נרצה, למשל, שידת לילה. ואז ניתן להרים את השקע מעל הכוננית במידת הצורך, לגובה של כ-50-60 ס"מ.
מהגובה הבסיסי של 30 ס"מ מטפסים מעלה גם בשאר החדרים לפי הצורך. למשל בחדר האמבטיה, את השקע שמעל השיש נהוג למקם כ-10 - 20 ס"מ מעל השיש, בהתאם למיקום הקרמיקה או ארון האמבטיה (לפעמים השקע ימוקם בארון כדי שיהיה מוסתר). חשוב כמובן שהשקעים יהיו נגישים, כמו למשל השקעים של מכונת הכביסה והמייבש, כדי שניתן יהיה לנתק אותם במקרה הצורך. במטבח המיקומים של השקעים משתנים לפי המכשירים. נקודות המדיח והתנור יהיו לרוב מתחת לגובה השיש, מאחורי הארון. נקודות קולט האדים והמקרר יהיו גבוהות, החל מכ-80 ס"מ. ישנה נקודה מעל השיש לטוסטר, או קומקום חשמלי תהיה בגובה של כ-10-20 ס"מ מעל השיש, תלוי בעיצוב ומה יש בקיר (אם יש
חיפוי או לא ואם השקעים מוסתרים או לא). אם בונים תכנית חשמל לבד, כדאי לשים לב למיקומים שהקבלן ממליץ עבור שקעים. בקירות גבס חדשים פשוט יותר למקם צינורות חשמל מאשר בקירות בלוקים קיימים, אך המיקומים הללו לאו דווקא יהיו הנוחים ביותר. כדאי לבדוק שההמלצה תואמת גם לנוחות השימוש מאוחר יותר.
מחפשים חשמלאי?


תכנית חשמל
מתגי חשמל
תכנית החשמל הקלאסית היא תכנית השקעים. חלק מהאדריכלים מפרידים בין תכנית השקעים בבית לבין תכנית התאורה הכוללת את מתגי החשמל וגופי התאורה. חלקם עושים תכנית אחת מאוחדת. בתכנית התאורה מסמנים את כל התאורה המתוכננת בבית - בין אם מדובר בתאורה על התקרות ובין אם על הקירות. לכל גוף תאורה יש מפסק משלו, כאשר כיום נהוג לעשות יותר ממפסק עבור כל מנורה. הדוגמה הקלאסית לכך היא בחדר שינה, כאשר מתג אחד נמצא ליד הדלת, והשני ליד המיטה. חשוב לדעת שמדובר בהוצאה נוספת, כך שבמידה והתקציב מצומצם, זהו מקום בו ניתן לחסוך. גובה המתגים יהיה בטווח של כ-90 עד 120 ס"מ. גובה מפסק דוד חשמל יהיה בגובה של כ-180 ס"מ. אחת הנקודות הבסיסיות שחשוב לוודא אותן היא מיקום השקעים בצד הדלת הקרוב לידית ולא לצירים, כלומר שעם פתיחת הדלת נוכל למשש את דרכנו למתג, ולא נצטרך לעבור מאחורי הדלת כדי להגיע אליו. שימו לב לכך גם במידה ושיניתם את צד פתיחת הדלתות. בעבר, ארונות החשמל היו ממוקמים מחוץ לדירה ואם החשמל היה קופץ, היה צורך לצאת מהדירה גם באמצע המקלחת עם המגבת והשמפו... כיום, המגמה היא להכניס את ארונות החשמל לתוך הדירה, בדרך כלל בכניסה לבית או בנישה המתאימה לכך.
את תכניות החשמל כדאי לעשות אחרי שתכנית הבית הכללית כבר סגורה, ואנו יודעים היכן ימוקם כל פרט בבית. לעתים תכניות החשמל יתחלקו בין תכנית אחת של נקודות חשמל ותכנית נוספת של תאורה. לפעמים תהיה תכנית חשמל אחת שתכלול את הכל. כך או כך, התכניות צריכות להיות מוכנות לפני שהקבלן נכנס לפעולה. לא מומלץ לתת לו להתחיל את העבודה ולסמן לו נקודות חשמל בשטח. חשוב לציין כי לפעמים יהיו מצבים שבהם הקבלן יכתוב על נקודות חשמל בתכנית "יסומן בשטח על ידי אדריכל". הדבר נעשה רק אחרי שקיימת תכנית ברורה, אבל יש צורך לסמן את הנקודה בשטח כדי להבטיח שהמיקום שנבחר הוא המתאים ביותר. את עבודות החשמל במהלך השיפוצים יבצע קבלן השיפוצים, במידה יש לו הסמכה לעבדות חשמל, או חשמלאי מוסמך שעובד עם הקבלן. חשוב לדרוש מההתחלה מהקבלן שרק חשמלאי מוסמך (שיכול להיות גם הקבלן עצמו) יבצע את העבודות.
החלפת חוטי החשמל
מומלץ להחליף את כל חוטי החשמל בבית. אם מבצעים שינוי, לא מומלץ להתחבר אל החוטים הקיימים מכיוון שהם עשויים להיות ישנם ולהתחמם. אם הם אכן ישנן, יתכן שלא יעמדו בעומס של מכשירים חשמליים חדשים שיכנסו לבית עוד שנתיים, כמו מזגן חדש או רדיאטור.
ג'קי, חשמלאי ראשי באלמגור הנדסת בניין מספר: "היה לנו לקוח ברעננה שלא רצה להחליף את החוטים בחדרים כי השיפוץ היה רק בסלון, אז הראתי לו איך חיברו בחדר חוטי חשמל חדשים לחוטים קיימים בתקרה כדי לחבר מאוורר תקרה, וחיברו אותם באיזולרבנד – זה לא בטיחותי ומסוכן. לא צריך לקדוח בקירות, פשוט מושכים את החוטים הישנים ומחליפים. ואז אפשר להיות רגועים ל-20 שנה".

טיפים לתכנית חשמל כשיש ילדים בבית
כדאי להוסיף יותר שקעים כדאי להימנע משימוש במפצלים לא רק מסיבה אסתטית אלא גם מסיבה בטיחותית. את השקעים ניתן לחסום עם מכסי פלסטיק, בעוד שמפצלים קלים לתלישה מהקיר ועלולים להיות מסוכנים בבתים עם ילדים קטנים. בחדרים עם ילדים קטנים מומלץ לשקול שימוש בדימר, העוזר בתהליך ההרדמה. האפשרות לעמעום אורות עד לחושך מוחלט מקלה על התהליך. כדאי כמובן לקחת בחשבון שמדובר בתוספת תשלום.
בניית תכנית חשמל עצמאית מול תכנית עם אדריכל
אם בניתם את תכנית השיפוץ שלכם ללא אדריכל, סביר שגם לא יהיה מעורב אדריכל בתכנית החשמל. היתרון של בניית תכנית חשמל עם אדריכלהוא הניסיון שלו המאפשר לו לשים לב לפרטים שלקוחות חסרי ניסיון לא תמיד יבחינו בהם. עם זאת, כמובן שאפשרי גם לבנות תכנית חשמל לבד, והדבר נעשה על ידי לא מעט לקוחות. כדאי להשקיע בתכנון זמן ולחשוב לפרטי פרטים מהם מכשירי החשמל הנמצאים בשימוש בבית והיכן נרצה למקם את כל השקעים והמתגים. אם אתם בונים תכנית באופן עצמאי, המאמר יכול לסייע לכם שלא לפספס נקודות חשובות בדרך. בכל מקרה, לפני שמתחילים לשבור קירות ולהתקין נקודות חשמל חדשות חשוב לתאם ציפיות מול החשמלאי שלנו ולבקש לפני השיפוץ לתת אחריות כוללת בכתב לעבודה ולחלקי החשמל.
מחירי תכנית חשמל
תכנית החשמל תתבצע בדרך כלל על ידי האדריכל או מעצב הפנים, במסגרת כלל התכניות לדירה. אם לוקחים אדריכל רק עבור התכנון ניתן לשלם לו על פי שעה (מחיר של כמה מאות שקלים לשעה) או לפי תכנית, כאשר תכנית אדריכלית לדירת 5 חדרים תעלה כ-1,500 דולר לפחות. יש אדריכלים המתמחרים לפי פעימות, כאשר כל אחת מתומחרת על פי מספר השעות שתיקח (פעימה של תכנון, ליווי וכו'). ניתן כמובן לקחת אדריכל או מעצב פנים לליווי במשך כל התהליך, אז מקובל לתמחר את העבודה לפי שטח הדירה (30-150 דולר למ"ר) או לפי אחוזים מהפרויקט כולו (8 עד 20 אחוז).
בטיחות בחשמל
- מניעת התחשמלות: הארקה היא חיבור עם מוליך לאדמה שמטרתו לנתק את זרם החשמל במקרה של סכנת התחשמלות. החוק מחייב התקנה של הארקה בכל בית, אבל לפעמים נעשים שינויים בבית כמו בשיפוצים או בהחלפת צנרת מים מצינורות ברזל לצינורות פלסטיק, ובסיומם לא מוודאים מחדש שהארקה קיימת ותקינה. ישנם תקנים נוספים כמו הזרמת חשמל במתח נמוך במקלטים, שמטרתם למנוע התחשמלות, או כמו הפרד מגן בגינה, או בעבודה עם גנרטור. כל חשמלאי, בכל הדרגות יודע מהם התקנים - מומלץ לוודא את הנושא איתו.
- ארון החשמל / לוח חשמל: הארון מכיל לוח חשמל המעביר את החשמל מחברת חשמל (או ממקור חשמל אחר) אל הבית. בארון צריך להיות לוח בקרה והגנה על מערכות החשמל בבית. למשל, במקרה של קצר חשמלי או עומס בצריכה הפסקים מגנים על הדיירים.
- חיזוק הלוח ותקינות החוטים והחיבורים: כ-80% מהשריפות בבית נגרמות בגלל החשמל: חוטים שמתחממים, חיבורים לא תקינים או בורג רופף אחד בלוח. כל זה עלול לגרום לשריפה, כי מגע רופף גורם לחום, וחשמל שזורם בצורה לא טובה יוצר חיכוך וחום - וזה עלול לגרום לאש.
- תקנים: כל חשמלאי עם רשיון מכיר את התקנים, כמו גובה השקעים מהרצפה, תקן לצינורות החשמל וכו'. אם עובדים עם חשמלאי מוסמך, עם רשיון מתאים לגודל החיבור - אתם יכולים להיות רגועים שהוא עובד לפי התקן.
