בית

>

אדריכלים

>

מאמרים

>

כל מה שצריך לדעת על תוכנית אדריכלית

כל מה שצריך לדעת על תוכנית אדריכלית

תוכנית אדריכלית היא הבסיס לכל שיפוץ כללי מוצלח. לפניכם פירוט על תהליך בניית התוכנית עם אדריכל ועלותו, כולל תוכניות אדריכליות לדוגמא וטיפים לקריאה נכונה.

מאמר מאת צוות שיפוצים פלוס

פורסם ב-22/07/2012 7 דק' קריאה

מהי תוכנית אדריכלית?

תוכנית אדריכלית היא שרטוט דו-מימדי שמציג את צורת הבנייה של מבנה תלת-מימדי לפרטי פרטים. כאשר מדובר בשיפוץ, האדריכל יוצר תכנית המשקפת את המראה המתוכנן העתידי של הבית או הדירה לאחר השיפוץ, בצורה דו מימדית. כאשר לוקחים אדריכל (או מעצב פנים) לקראת שיפוץ כללי הוא אמון על התוכנית האדריכלית והיא מהווה את המסמך הבסיסי לתיאור התוצאה אותה נדרש קבלן השיפוצים להוציא לפועל. מכיוון שתיאור דו-מימדי של מבנה תלת-מימדי היא משימה לא פשוטה, נעזרים אדריכלים בתוכניות גרפיות תלת מימדיות שמסייעות להמחיש ללקוח ולאדריכלים עצמם את תהליכי הבניה ואת המראה הוויזואלי העתידי שיהיה למבנה.

איך בונים תוכנית אדריכלית?

בפגישה הראשונית עם האדריכל או מעצב הפנים לקראת יצירת תכנון אדריכלי, תצטרכו לרדת לפרטי הפרטים של מה אתם רוצים מהבית העתידי שלכם, דבר שנגזר בעצם מההרגלים שלכם ושל שאר בני הבית (מובן שהדבר רלוונטי יותר לשיפוץ בית שחיים בו ולא לדירה להשקעה או שיפוץ מצומצם). בשלב הזה ישאל אתכם האדריכל - או שתשאלו את עצמכם - איפה אתם אוהבים לשתות את הקפה של הבוקר? איך אתם מבלים את סופי השבוע? כמה אתם אוהבים לבשל? איפה אתם אוהבים לארח? איפה אתם נחים בסוף היום? מה החדר בו אתם מבלים הרבה שעות? אם יש ילדים - באילו גילאים הם? איפה הם אוהבים לשחק? האם הם זקוקים לחדר אמבטיה משל עצמם? וכו'.

שלבי הבנייה של התוכנית

מדידה - במהלך בניית התכניות תתבצע מדידה של הדירה הקיימת. בדרך כלל יהיה צורך להוציא את תכניות הדירה המקוריות שנמצאות בדרך כלל במחלקת ההנדסה (ארכיב תיקי בניין) ברשות המקומית או בידי הקבלן/המהנדס שבנה את הבניין (ישנם גם מהנדסי בניין המחזיקים ארכיב של תכניות עבר), ולבצע את המדידות מולן. את השלב הזה יבצע האדריכל/מעצב או אם אין עדיין כזה בשלב זה האדריכל יבצע את המדידות. ניתן גם להזמין מודד או לבצע את המדידות לבד, המדידות בשלב זה יהיו מקיפות יותר מהמדידות בתכנית המקורית של הדירה ויכללו כל חלון ופתח, רוחב המסדרונות, גדלי חדרי רחצה ועוד.      

מומלץ לקרוא: איך משיגים תוכנית אדריכלית מקורית של דירה?

בניית פרוגרמה אדריכלית - לפי התשובות לשאלות וההחלטות שמתקבלות האדריכל/מעצב יבנה את הפרוגרמה, התכנית הראשונית לשיפוץ. הוא יחלק אותה לרוב לפי חדרים: הסלון, המטבח, חדרי השינה, חדרי אמבטיה וכו',  ויכתוב מה מעוניינים לעשות בכל חדר או אזור בבית. לפעמים הוא יוסיף שרטוטים כללים כדי לתת תמונה ברורה יותר.

בניית שרטוט - לאחר הגדרת הצרכים והמדידות מגיע שלב השרטוט, כאשר במהלכו מטמיע איש המקצוע את צרכי הלקוחות בתכנית המתחשבת בחוקי התכנון והבנייה (הקובעים למשל שגודלו של חדר לא יפחת מ-9 מ"ר וכו'). את התכניות מציג איש המקצוע ללקוחות ויחד נעשות מספר גרסאות, עד שמגיעים לתכנית הסופית. ישנם אנשי מקצוע שיבנו מספר תכניות נפרדות: תכנית ריהוט, תכנית חשמל, תכנית אינסטלציה, תכנית פתחים: דלתות וחלונות ותכנית נגרות שמתוכן ייבנו את התכנית האחרונה והסופית. התשריט חשוב לבניית כתב הכמויות עבור הקבלן ועליו להיות גמור לפני השלב בו מתחילים לרכוש את חומרי הגמר עבור השיפוץ.

לא לכל אחד - יצירת תכנית אדריכלית בעצמכם - לא כולם מעוניינים להוציא את עשרות אלפי השקלים לתכנון אדריכלי. למרות שאם מדובר בשיפוץ כללי, אנחנו ממליצים לכם בחום כן לעשות זאת. לצד ההמלצה, אנו מודעים לכך שישנם לקוחות המעדיפים לבנות את התכנית בעצמם. הדרך הזו לא מתאימה לכל אחד. אם אתם לגמרי טכנופוביים, מתעייפים מישיבה מול מחשב ולא מתעניינים יותר מדי בעיצוב - כנראה שזה לא עבורכם. אם יש לכם הרבה זמן פנוי, סבלנות ללמוד מטעויות (לעתים גם לשלם עליהם גם מחיר כספי) ואתם נחושים למצוא דרך להשיג תוכניות אדריכליות בחינם - שווה לנסות. אחד הכלים המקוונים הפופולריים לתכנון הבית נקרא RoomSketcher, תוכנה מקוונת המאפשרת גם למי שאינו איש מקצוע ליצור תוכניות אדריכליות בחינם באופן פשוט ואינטואיטיבי למדי. RoomSketcher מאפשר תכנון בדו מימד, בתלת מימד ואפילו יכול להוציא אתכם לסיורים וירטואלים בבית העתידי שלכם.

רינת ישראלי

ציון 9.9 22 חוות דעת

מיכל אהרוני גובס

ציון 9.89 9 חוות דעת

טלי דורה אדריכלות

ציון 9.7 5 חוות דעת

דבורה הורביץ

ציון 9.75 14 חוות דעת

התוכנה מאפשרת לתכנן את כל האלמנטים השונים בעיצוב הבית: מתכנון והצבת הקירות, דרך בחירת החומרים ועד להצבת הרהיטים והעיצוב. אחד מיתרונות RoomSketcher הוא העובדה שהתוכנה היא חינמית ולא מחייבת. אפשר להיכנס לאתר, לשחק קצת ואז להחליט אם זה בשבילכם או לא.

מומלץ לקרוא: כלים מקוונים נוספים שיעזרו לכם בשיפוץ

תוכנית אדריכלית

מחפשים אדריכל?

או

עלות תכנון אדריכלי

ישנן מספר דרכים לתמחר עבודה של אדריכל  (או מעצב פנים) בתהליך השיפוץ: אחת השיטות לתשלום עבור אדריכל היא על פי שעה. כאשר מתיישבים עם האדריכל לשיחה ראשונית על הפרויקט הוא מעריך פחות או יותר כמה שעות עבודה זה ייקח והמחיר יהיה בהתאם. שעת עבודה של אדריכל או מעצב פנים יכולה להגיע למאות שקלים לשעה. לכן, לרוב בעלי המקצוע יתמחרו את עבודתם לפי שעה כשמדובר בפגישות בודדות ולא לעבודת שיפוץ שלמה. אם אתם נפגשים עם אדריכל רק לשיחות ייעוץ או לבניית תכנית זו שיטה אפשרית.

שיטה נוספת המקובלת במקרה של שיפוצים כלליים היא תמחור לפי שטח הדירה. המחיר נקבע לפי מ"ר של עבודה כך שאין סכנה של חריגה מהתקציב. המחירים נעים בין 30-150 דולר למ"ר, תלוי בניסיון המקצועי והוותק של בעל המקצוע הנבחר. עוד שיטה שכיחה במקרים של שיפוץ היא תמחור לפי אחוזים מהפרויקט. האדריכל/מעצב יקבל אחוז מסוים מכלל מחיר השיפוץ שנע בין8% לבעלי מקצוע מתחילים ול20% עבור כאלה בעלי שם, מוניטין וותק רב. התמחור ישתנה גם לפי היקף העבודה שמבצע עבורכם האדריכל: אם הוא משרטט תכנית בלבד, מלווה את כל תהליך השיפוץ ואם עורך עמכם קניות ומלביש את הבית.

למידע נוסף על עלות אדריכל

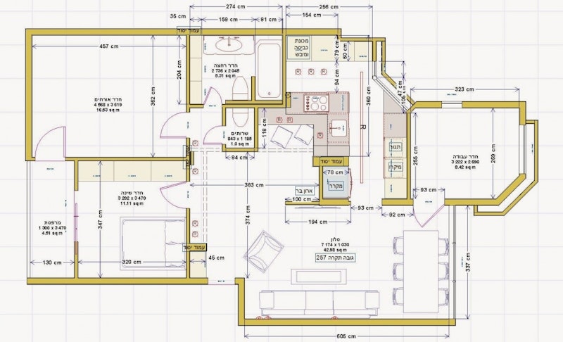
תוכניות אדריכליות לדוגמא

תוכנית אדריכלית

תוכנית אדריכלית

תוכנית אדריכלית

למי שאינו מורגל בכך, לוקח מעט זמן להבין איך לקרוא תוכנית אדריכלית ויותר מכך, קשה בהתחלה להבין מהשרטוט אם היא מתאימה באופן האופטימלי לצרכים של בני הבית. אם עוד לא יצא לכם להתמודד עם תוכניות אדריכליות, כדאי לדעת שקיימים סימונים בסיסיים שיכולים לסייע לכם עם קריאת התוכנית האדריכלית והכרתה:

  • צפון - כפי ציינו בתחילה, בכל תוכנית אדריכלית יהיה סימון של הצפון כדי למקם את המבנה ביחס לסביבתו.
  • בתוכנית בקנה מידה של 1:100 הקירות התומכים והחיצוניים יצבעו בקו שחור עבה כדי להבדיל אום מקירות הפנים.
  • קו דק בשרטוט יסמן קיר פנימי שאפשר לשנות את מיקומו.
  • אלמנטים שלא מקובעים לרצפה אלא תלויים כמו תקרות גבס מונמכות, ארונות מטבח וכו' יסומנו בקווים מקווקווים.
  • גובה התקרה יסומן ביחידת מידה של ס"מ ועם האות H מוצמדת ליד.
  • תוכנית אדריכלית תכלול קווי רוחב ואורך המפורטים באופן מילולי בס"מ לצד כל קו.
  • בתוכנית אדריכלית יהיה סימון של פתחים שונים כגון דלתות וחלונות ותפורט זווית הפתיחה של אלו.
  • ריהוט וכלים סניטריים יהיו על ידי איור ממבט עליון.
  • הריצוף יסומן על פי הגודל היחסי שלו והתאמתו לקנה המידה בשרטוט.

לאחר שהכרנו את המונחים, המושגים והאלמנטים הגרפים הבסיסים נוכל לגשת לקריאת התוכנית האדריכלית. בדרך כלל, מומלץ להתחיל לבחון אותה ממבט על ואז לרדת לפרטים. כדאי להתבונן על המסגרת הכללית של התוכנית ולבדוק את החלוקה הכללית שנעשתה בחללים השונים. חשבו על הזרימה הטבעית שיש בחלל באמצעות התוכנית האדריכלית. דמיינו שאתם צועדים בחלל הבית לפי התכנון הקיים שלו והאם החללים מסתדרים זה לצד זה. האם השירותים ממוקמים נכון, האם חדרי השינה מספיק מרוחקים ופרטיים, האם קיימת הפרדה בין אזור האורחים לאזור הפרטי שלכם?

כדאי לוודא כי אין התנגשויות או אזורים צרים מדי בבית תוך מחשבה על תנועת הדיירים בבית. בחנו חללים צרים יותר, או חללים רחבים - האם מתאימים לסלון? למטבח? לחדר שינה? האם תכנון חדר מסוים ליד השני יוצרת הרמוניה בבית? וכו'.

יש לקחת בחשבון גם את קנה המידה של הרהיטים המשורטטים ביחס לגודל החלל כדי לקבל פרספקטיבה מדויקת יותר על המרחב שיווצר בחלל כשיהיו בו גם הרהיטים, ולבחון כמה החלל ייראה וירגיש מרווח. בחנו את חלונות הבית וראו אם הם נותנים הרגשת ביטחון בסף הגובה שלהם. כנ"ל לגבי מדרגות ומעקות ברחבי הבית.

מובן שאם עדיין אתם מרגישים שקשה לכם לתרגם תחושה בבית לשרטוט דו מימדי, ישנן כיום תוכנות שיכולות לספק גם תמונה תלת מימדית. אצל רוב האדריכלים תוכלו לקבל את השירות הזה, כך שלא תצאו לתהליך מבלי לחוש שהתוכנית הסופית היא לרוחכם. 

מחפשים אדריכל?

או

המאמר עזר לכם?

שאלו את המומחים בפורום

שאלו שאלה