שיפוצים פלוס
הצטרפות בעלי מקצוע
מצא מומחה לפרוייקט שלך
פורום אדריכלות
אורטל ווקנין מYavne

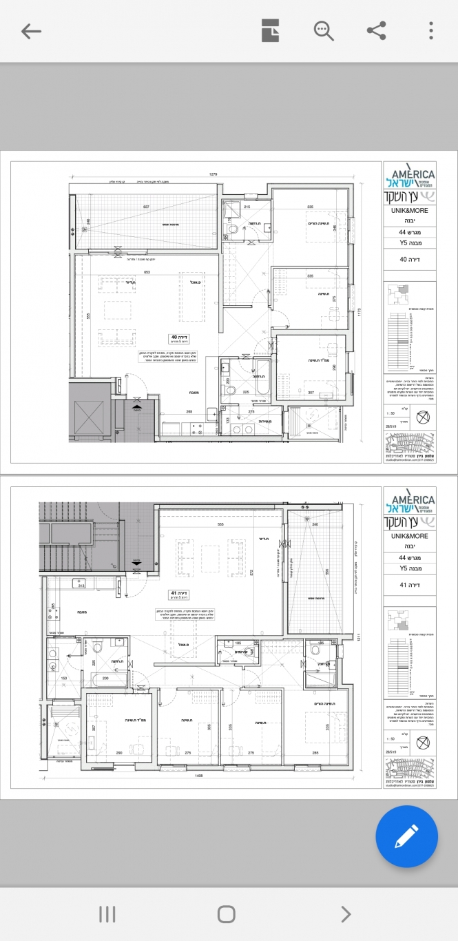
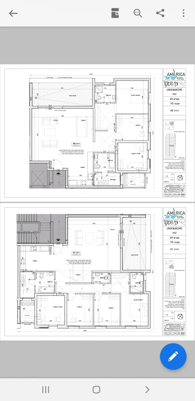
הפיכת 4 חדרים ל 5 האם אפשרי? דירה מס' 40

אורטל ווקנין מYavne
05/07/20

screenshot20200705034158adobe-acrobat.jpg

screenshot20200705034153adobe-acrobat.jpg

screenshot20200705034137adobe-acrobat.jpg

3 תגובות
מומחה
אורלי הורוביץ
מעצב פנים
05/07/20

תלוי בשטח הכללי של הדירה
עבור 5 חדרים צריך שטח של לפחות
110-120מ"ר

אורטל ווקנין - שואל\ת השאלה
אורטל ווקנין מYavne, שואל\ת השאלה
06/07/20

הדירה תהיה 118 מטר

מומחה
וקסברג אדריכלות יצירתית להגדלת תשואה מנדל"ן
אדריכל
05/07/20

היי אורטל,
יש דירות שאפשר להפוך מ-4 ל-5 חדרים. אפילו את דירת ה-4 חדרים שלי הפכתי לחמישה. אך לא ברור לאיזו דירה מספר 40 את מתכוונת באיזה רחוב , באיזו עיר ? השאירי גם מספר טלפון כדי שאוכל לשאול אותך שאלות נוספות ואענה לך.

מומחה
0538093633
x
מעצב פנים
05/07/20
053-8093633

היי , תמיד כן אבל משהו בא על חשבון משהו. השאלה איזה חלל יותר חשוב לכם

האם כבר נרשמת לאתר שיפוצים פלוס?
מומחה בתחום?
מומחה רשום

כדי לזהות אותך, נשלח לך קוד אימות במסרון (SMS) לנייד - אותו יש להקליד בתיבה פה למטה.

עדיין לא מומחים בשיפוצים פלוס? הרשמו
רישום מומחה חדש

התגובה שלי
צרו קשר