בית

>

טכנאי מזגנים

>

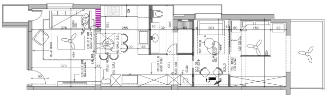
שאלה : כיצד נכון למזג את הדירה בשרטוט המצורף?

הקלידו כאן שאלה ותקבלו תשובה מהמומחים שלנו

שאלו שאלה

כיצד נכון למזג את הדירה בשרטוט המצורף?

פורסם על ידי עונים בפורום וכבר לא איתנו
11/05/22

באיזה סוג מזגן? כמה כ"ס?

כמה יחידות והיכן נכון למקם את היחידות?

אשמח לתשובות מאנשי מיזוג שמבינים ויוכלו לנמק את התשובה.

השיפוץ החל מאמצע יוני.

תודה!

1 תגובות

אפשר לחשב לך את זה אבל זה לא יהיה מדוייק צריך לדעת איזה צדדים יש לך שם איזה גודל חלונות גובה תקרה וכו, מהנדסים שיושבים לחשב את זה מבקשים על זה כסף בשביל דברים כאלה הם למדו.. יש לך חישובים סטנדרטיים באינטרנט אבל קח בחשבון שזה לא הכי מדוייק.. מציע לך לקחת טכנאי מיזוג אחד גם להכנות צנרת וגם להתקנות והוא יחשב לך בדיוק.. ועוד טיפ היום רוב האנשים לוקחים מערכת vrf עם יחידות נסתרות יש זריקות ישירות או מתועלות יש גם יחידות עיליות זאת מערכת חכמה ומתקדמת מאוד עם מעבה אחד על הגג או במסתור כביסה